STANOVI ŠESTANOVA
Izvan Uobičajenog Okvira
Ovdje počinje naše putovanje. Upoznajte naše stanove i što radimo te kako smo predani kvaliteti i izvrsnoj usluzi. Pridružite nam se dok zajedno rastemo i uspijevamo. Drago nam je što ste ovdje da budete dio naše priče.

ODABERITE STAN

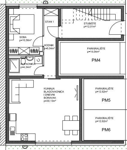
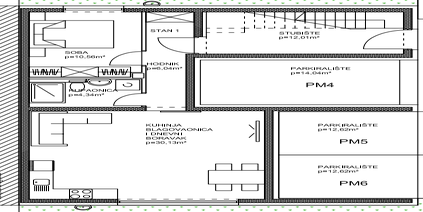
STAN S1
Zatvoreni dio I 51,07 m2
Otvoreni dio - dvorište I 95,13 m2
Stan S1 PRIZEMLJE - UKUPNA POVRŠINA: 60,58 m2
* KUHINJA, BLAGOVAONICA I DNEVNI BORAVAK
* 1 SPAVAĆA SOBA
* KUPAONICA
* DVORIŠTE Vaša privatna Zelena Oaza


STAN S2
Zatvoreni dio I 75,07 m2
Otvoreni dio - LOGGIA I 8,40 m2
Stan S2 1.KAT - UKUPNA POVRŠINA: 81,37 m2
* KUHINJA, BLAGOVAONICA I DNEVNI BORAVAK
* 3 SPAVAĆE SOBE
* KUPAONICA
* WC
* HODNIK
* LOGGIA
Pogled. Pozicija. Prilika.
-
Privatnost i mir: 1 ulaz - samo 4 stana
-
Parking bez brige: 2 parkirna mjesta po stanu u zatvorenom dvorištu
-
Zelene oaze: dvorišta u prizemlju, terase u potkrovlju
-
Top lokacija: centar Zaprešića, 2–5 min do trgovina, vrtića, škole, vlaka, u neposrednoj blizini prekrasni Jelačićevi Novi dvori i jezero Zajarki - oaza za ljubitelje sporta i prirode.
- Atraktivne kvadrature stanova u ponudi već od 60 m2 do 82 m2
- Moderan dizajn stanova, Pažljivo birani materijali, Kvalitetna gradnja. Podno grijanje. Plin/Klime. Vrhunska stolarija. Podovi gres pločice 1.kl imitacije hrasta. Moderne kupaonice.
-
MaliVelikiStan4You Pametan odabir
STAN S3
Zatvoreni dio I 75,07 m2
Otvoreni dio - LOGGIA I 8,40 m2
Stan S3 2.KAT - UKUPNA POVRŠINA: 81,37 m2
* KUHINJA, BLAGOVAONICA I DNEVNI BORAVAK
* 3 SPAVAĆE SOBE
* KUPAONICA
* WC
* HODNIK
* LOGGIA


STAN S4
Zatvoreni dio I 57,71 m2
Otvoreni dio - TERASA I 34,90 m2
Stan S4 3.KAT - UKUPNA POVRŠINA: 66,44 m2
UVUČENA ETAŽA
* KUHINJA, BLAGOVAONICA I DNEVNI BORAVAK
* 2 SPAVAĆE SOBE
* KUPAONICA
* HODNIK
* TERASA * Prostrana terasa sa integriranom vanjskom kuhinjom (mini hladnjak, sudoper, roštilj) * Pogled na dvorišni dio i zelenilo