STANOVI PETREKOVIĆEVA
Izvan Uobičajenog Okvira
Ovdje počinje naše putovanje. Upoznajte naše poslovanje i što radimo te kako smo predani kvaliteti i izvrsnoj usluzi. Pridružite nam se dok zajedno rastemo i uspijevamo. Drago nam je što ste ovdje da budete dio naše priče.

ODABERITE STAN

STAN S1
Zatvoreni dio I 25,59 m2
Otvoreni dio - dvorište I 29,02 m2
Stan S1 PRIZEMLJE - UKUPNA POVRŠINA: 28,49 m2
* KUHINJA, BLAGOVAONICA I DNEVNI BORAVAK
* KUPAONICA
* DVORIŠTE Vaša privatna Zelena Oaza


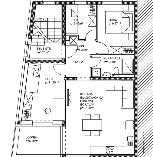
STAN S2
Zatvoreni dio I 63,90 m2
Otvoreni dio - LOGGIA I 6,30 m2
Stan S2 1.KAT - UKUPNA POVRŠINA: 68,63 m2
* KUHINJA, BLAGOVAONICA I DNEVNI BORAVAK
* 3 SPAVAĆE SOBE
* KUPAONICA
* HODNIK
* LOGGIA
Pogled. Pozicija. Prilika.
-
Privatnost i mir: 1 ulaz - samo 4 stana
-
Parking bez brige: 2 parkirna mjesta po stanu u zatvorenom dvorištu
-
Zelene oaze: dvorišta u prizemlju, terase u potkrovlju
-
Top lokacija: centar Zaprešića, 2–5 min do trgovina, vrtića, škole, vlaka; u neposrednoj blizini prekrasni Jelačićevi Novi dvori i jezero Zajarki - oaza za ribiče & ljubitelje sporta i prirode.
- Atraktivne kvadrature stanova u ponudi već od 29m2 do 64 m2
- Moderan dizajn stanova. Pažljivo birani materijali. Kvalitetna gradnja. Podno grijanje. Plin/Klime. Vrhunska stolarija. Podovi gres pločice 1.kl. Moderne kupaonice.
-
Pametan odabir: PRETPRODAJA U TIJEKU — OSIGURAJ STAN NA VRIJEME
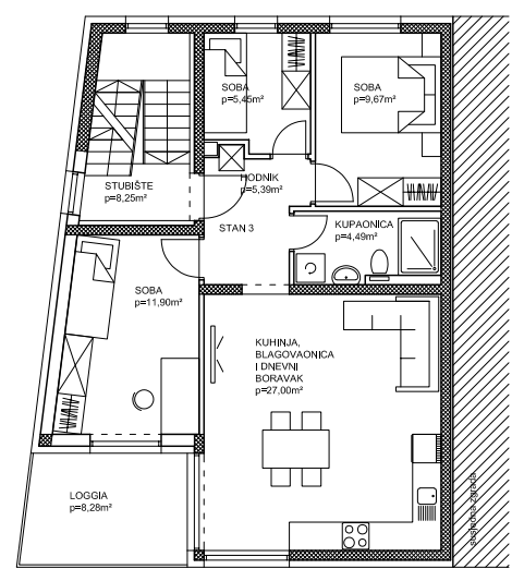
STAN S3
Zatvoreni dio I 63,90 m2
Otvoreni dio - LOGGIA I 8,28 m2
Stan S3 2.KAT - UKUPNA POVRŠINA: 70,11 m2
* KUHINJA, BLAGOVAONICA I DNEVNI BORAVAK
* 3 SPAVAĆE SOBE
* KUPAONICA
* HODNIK
* LOGGIA

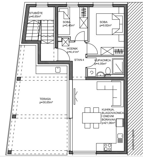
STAN S4
Zatvoreni dio I 44,79 m2
Otvoreni dio - LOGGIA I 30,65 m2
Stan S4 3.KAT - UKUPNA POVRŠINA: 52,45 m2
UVUČENA ETAŽA
* KUHINJA, BLAGOVAONICA I DNEVNI BORAVAK
* 2 SPAVAĆE SOBE
* KUPAONICA
* HODNIK
* LOGGIA * Prostrana terasa sa integriranom vanjskom kuhinjom (mini hladnjak, sudoper, roštilj) * Pogled na dvorišni dio i zelenilo
